Property Description

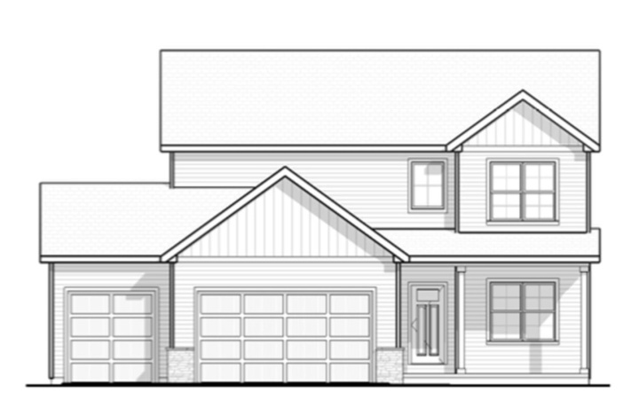
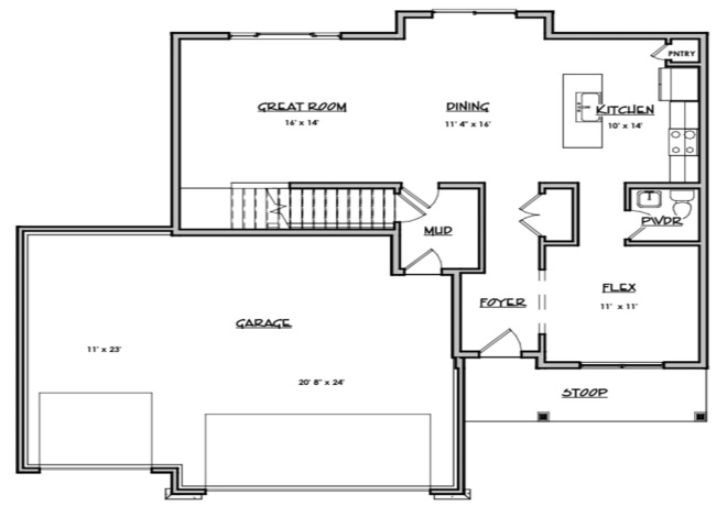
Quality new construction in the desirable Commons At Prairie Hill Subdivision! Built by Next Generation Construction, known for exceptional craftsmanship and quality. Welcome to this thoughtfully designed & popular custom two-story home offering comfort, flexibility, and modern style throughout. A charming covered front porch sets the tone as you step inside to a dramatic two-story foyer. Just off the entry is a versatile flex room. This room is ideal for a home office, playroom, or additional living space. The heart of the home is the open-concept kitchen featuring soft-close white cabinetry, quartz countertops, stainless steel appliances, and a large center island, flowing seamlessly into the spacious dining area and great room perfect for everyday living and entertaining. A convenient mud/drop zone sits just off the oversized 3.5-car garage. Upstairs, all four bedrooms are thoughtfully placed, along with a hall bath and a generous owner’s suite showcasing a large walk-in closet and private en suite with double vanity and walk-in shower. Enjoy the added convenience of second-floor laundry. No more hauling baskets up and down stairs! The lower level offers excellent future potential with an egress window and bath rough-in, allowing for a future fifth bedroom and full bathroom. Located in Prairie Hill/Hononegah School District and have a low 8.05% tax rate! Have peace of mind knowing there is a one-year comprehensive builder warranty. There are five homes currently under construction with an estimated completion date of June 2026. Additional floor plans and lots are available within the neighborhood. Photos of similar model. Please reach out for details.

Features
: Forced Air, Natural Gas
: Central air
: No
Location
US
IL
SOUTH BELOIT
61080
Prairie Commons
14192
W90° 59' 46.2''
N42° 28' 0.3''
14192 Prairie Commons Lane
Additional Information
ACTIVE and AVAILABLE
2.5
City/Community
City/Community
Electric
Taylor
Century 21 Affiliated
: Walk-in closet, Countertop-solid surface
: Brick/stone, Siding
745
$0
$0
Hononegah 207
Prairie Hill Elementary
Willowbrook
Hononegah High
: Laundry 2nd Floor, Home Warranty, Great Room
04/11/2026
City/Town,Subdivision
02/18/2026 16:32:38

14192 Prairie Commons SOUTH BELOIT, Illinois 61080

House For Sale
4 Bedrooms
2 Bathrooms
2,071 Sqft
$389,900

Reference ID: 202600843

Basic Details
Property Type : House
Price : $389,900
Bedrooms : 4
Bathrooms : 2
Half Bathrooms : 1
Square Footage : 2,071 Sqft
Lot Area : 0.27 Acre
Agent info

This listing is courtesy of

Jason Taylor

Century 21 Affiliated

Request More Information